北票市宏发牧业有限公司6万吨智能化玉米仓储建设项目规划方案公示
更新日期:2026-04-24 信息来源:朝阳北票经济开发区规划建设局     浏览: 次
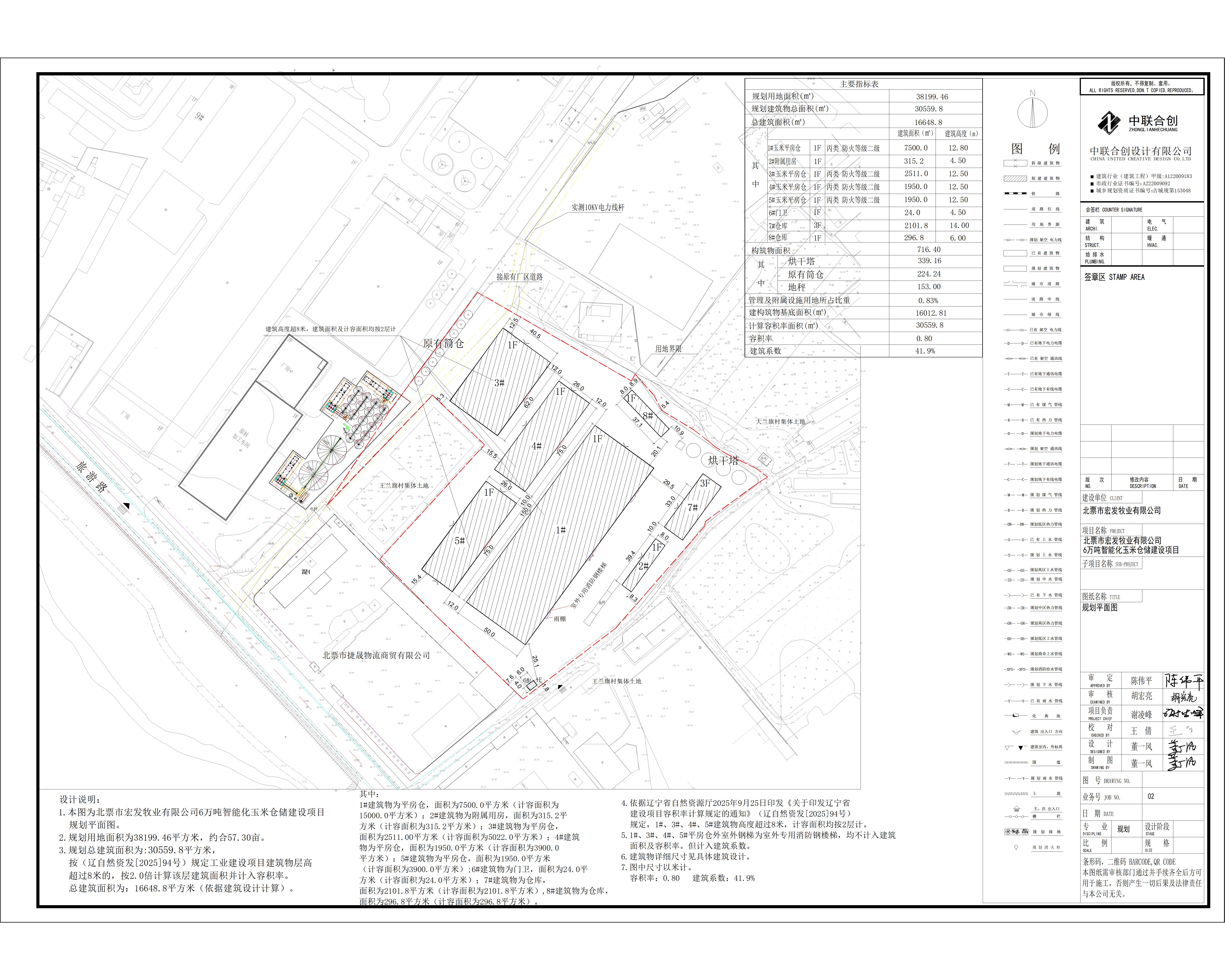
依照《中华人民共和国城乡规划法》等法律法规的相关规定,现将北票市宏发牧业有限公司6万吨智能化玉米仓储建设项目规划方案予以公示。北票市宏发牧业有限公司6万吨智能化玉米仓储建设项目位于北票市农产品园区。
公示期为10个自然日。凡与以上公示内容有利害关系的单位或个人,可在公示之日起7个工作日内向本局提出意见,逾期未提出的视为无异议。
监督电话:0421-5392782 电子邮箱:bpjjkfqghjsj@163.com
